Individuelle Ersatzteile

MECHANISCHE MASCHINEN BLEIBEN IN SCHUSS

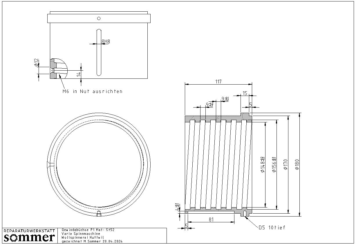
Sie benötigen für eine mechanische Maschine oder eine ähnliche Anlage ein Ersatzteil, das nicht mehr erhältlich ist? Recherchen bei ehemaligen Herstellern oder in Ersatzteillagern kosten Zeit und führen oft nicht zum Ziel. Der effizienteste Weg ist oft das Herstellen des fehlenden Teils. 


Ich besichtige die Maschine vor Ort und konstruiere das fehlende Element nach der angefertigten Zeichnung oder direkt nach Mass des alten Teils. 

 

Melden Sie sich gerne unter: 079 733 61 34




Einige Beispiele meiner arbeit:




DAS KÖNNTE SIE AUCH INTERESSIEREN